Eigentum

ERSTBEZUG "ein viertel grün" in Wr. Neustadt - idyllische 2 Zimmerwohnung mit Balkon - inkl. Tiefgaragenstellplatz in bester Lage - provisionsfrei

2700 Wiener Neustadt, Elisabeth Bollenberger - Gasse
Fläche
51.18 m²
Zimmer
2
Kaufpreis
200.270,00 €

Überblick

Rechtsform
Eigentum
Baujahr
2026
Immobilientyp
Wohnung
Fertigstellung
30.09.2026
Adresse
2700 Wiener Neustadt, Elisabeth Bollenberger - Gasse

Ausstattung

Keller
Parken
Lift

Beschreibung

Herzlich Willkommen im neuen Stadtviertel "ein viertel grün" in Wiener Neustadt!

Hier trifft modernes Wohnen auf naturnahe Umgebung - ideal für junge Familien, Paare sowie Einzelpersonen die Wert auf Lebensqualität, Gemeinschaft und Nachhaltigkeit legen.

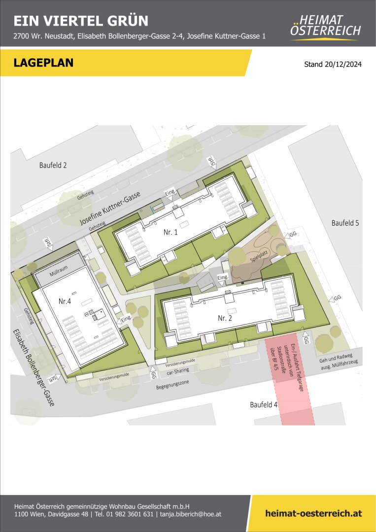
Das gesamte Areal ist verkehrsberuhigt und umgeben von Grünflächen. Kinder können unbeschwert spielen, und Sie genießen entspannte Stunden im eigenen Garten oder auf dem Balkon.

Öffentliche Geh- und Radwege führen durch das gesamte Areal.

Ein Plus für Familien ist der moderne Kindergarten direkt im Quartier.

Ein eigener Quartierstreff bietet Raum für Begegnungen, Austausch und neue Freundschaften.

Alle wichtigen Einrichtungen für den täglichen Bedarf, sowie Nahversoger für Sie und Ihre Liebsten befinden sich in unmittelbarer Umgebung. 

Hier die Details im Überblick:

  • 51 geförderte Eigentumswohnungen
  • ca. 50m² - 90m², 2 - 4 Zimmer
  • alle Wohnungen mit Freifläche in Form von Terrasse und Eigengarten oder Balkon
  • hochwertige Laminatböden
  • Tiefgarage: Jeder Wohnung sind 1-2 Stellplätze zugeordnet und bereits im Kaufpreis inkludiert. Weitere Stellplätze können zusätzlich erworben werden.
  • Niedrigenergiebauweise
  • ruhige Lage im Grünen
  • Einlagerungsräume
  • Fahrrad- und Kinderwagenabstellräume
  • Waschküchen
  • Personenaufzug
  • Kinderspielplatz mit Sitzmöglichkeiten
  • Müllräume
  • Photovoltaik am Dach
  • HWB Wert ca. 29,4 kwh/m²a, fGEE ca. 0,56
  • Fertigstellung voraussichtlich September 2026

 

Weiters gibt es freifinanzierte Eigentumswohnungen auf diesem Areal.
Nähere Infos gibt es hier: Freifinanzierte Eigentumswohnungen

Willkommen in Ihrem neuen Zuhause in der charmanten Stadt Wiener Neustadt!

Diese attraktive Wohnung im 2. Obergeschoss bietet Ihnen nicht nur modernen Wohnkomfort, sondern auch eine ideale Lage, die alle Annehmlichkeiten des täglichen Lebens in greifbare Nähe rückt.

Mit einer Fläche von ca. 51 m² eignet sich diese Wohnung perfekt für Singles oder Paare. Der durchdachte Grundriss umfasst zwei helle Zimmer, die Ihnen vielfältige Gestaltungsmöglichkeiten bieten. Ob als Schlafzimmer, kreatives Arbeitszimmer oder einladendes Wohnzimmer – hier können Sie Ihre persönlichen Wohnträume verwirklichen.

Die Wohnung ist im Erstbezug – einfach einziehen und wohlfühlen.

Ein besonderes Highlight ist der Balkon, auf dem Sie entspannte Stunden im Freien verbringen können. 

Der helle Wohnbereich lädt zum Entspannen und Verweilen ein. Von hier aus gelangen Sie auf den schönen Balkon, ideal für entspannte Stunden im Freien oder gesellige Abende mit Freunden. Der Küchenbereich fügt sich harmonisch in den Wohnbereich ein und bietet Ihnen genügend Platz, um Ihre kulinarischen Fähigkeiten auszuleben.

In das Schlafzimmer gelangt man über einen Gang, welcher mit dem Wohnzimmer verbunden ist. Das Schlafzimmer bietet Ihnen einen Blick auf den eigenen Balkon.

Der Abstellraum sorgt für extra Stauraum.

Das Badezimmer ist modern verfliest und mit einer Badewanne ausgestattet. Des Weiteren befinden sich ein Handwaschbecken, ein WC und ein Waschmaschinenanschluss im Badezimmer. 

Sie haben die Möglichkeit den rückzahlbaren Annuitätenzuschuss zu übernehmen. Dieser kann ggfls. auf Ihr Fremdfinanzierungsdarlehen übertragen werden.
Der Höchstbetrag des Annuitätenzuschusses beträgt ca. € 222,35 pro Monat.

Erleichterte Finanzierungsmöglichkeit durch Übernahme der Förderung und des Bankdarlehen – beides kann bei unserem Projekt übernommen werden und somit Ihre Gesamtkosten senken.

Nähere Details zu Ihrer Traumimmobilie entnehmen Sie den Dokumenten. 

Kaufpreis Wohnung inkl. Stellplatz: € 200.270,--

Lassen Sie sich diese Chance nicht entgehen! Ihr neues Zuhause wartet auf Sie!

Lage und Umgebung

250 m
Verkehrsmittel
500 m
Supermarkt
500 m
Bank
750 m
Kindergarten
250 m
Schule
750 m
Arzt

Downloads

0.06 mb
0.09 mb
0.12 mb

Anfrage senden

* Pflichtfelder