St. Pölten - Jetzt Ihre Traumwohnung sichern! Geförderte Mietwohnungen in der Stifterstraße
Miete

3 Zimmer Wohlfühlwohnung in Gresten

3264 Gresten,
Fläche
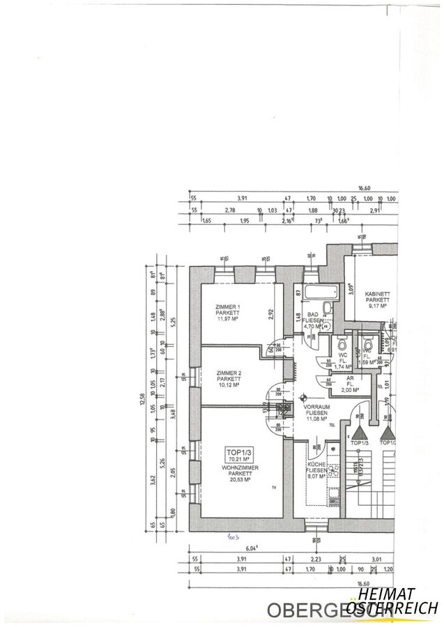
70.21 m²
Zimmer
3
Mietpreis
604,94 €

Überblick

Rechtsform
Miete
Baujahr
2005
Immobilientyp
Wohnung
Adresse
3264 Gresten,
Förderung
Land Niederösterreich

Ausstattung

Parken

Beschreibung

Willkommen in Ihrem neuen Zuhause in Gresten!

Diese attraktive Wohnung erwartet Sie mit einer großzügigen Fläche von 70,21 m² und bietet Ihnen die perfekte Kombination aus modernem Wohnkomfort und einer ruhigen, einladenden Umgebung.

Die Wohnung erstreckt sich über drei lichtdurchflutete Zimmer, die Ihnen ausreichend Platz für Ihre individuellen Wohnideen bieten. Ob als harmonisches Schlafzimmer, ein inspirierendes Arbeitszimmer, Kinderzimmer oder ein einladendes Wohnzimmer – hier finden Sie die Freiheit, Ihre persönlichen Wohnträume zu verwirklichen.

Die Küche ist separat angelegt und gegenüber vom Wohnzimmer vorzufinden.

Die gepflegte Ausstattung mit hochwertigen Fliesen und Parkett sorgt für eine angenehme Wohnatmosphäre und macht jeden Raum zu einem echten Wohlfühlort.

Ein besonderes Highlight dieser Wohnung ist das stilvolle Badezimmer, das mit einer entspannenden Badewanne ausgestattet ist. Hier können Sie nach einem langen Tag die Seele baumeln lassen. Zusätzlich verfügt die Wohnung über ein separates WC sowie einen praktischen Abstellraum, der Ihnen zusätzlichen Stauraum für Ihre persönlichen Dinge bietet.

Die Wohnung wird mittels Fernwärme beheizt. Zudem ist ein Autoabstellplatz vorhanden, was Ihnen das Parken Ihres Fahrzeugs erheblich erleichtert.

Die Wohnung befindet sich in zentraler Lage in Gresten, nur einen Katzensprung entfernt von Einkaufsmöglichkeiten, Kindergarten, Volksschule, Arzt und Bank – alles ist bequem fußläufig erreichbar. Für Freizeitaktivitäten ist das Voralpenbad in der Nähe, das mit einem solargeheizten Schwimm- und Sprungbecken, einer Wasserrutsche, einem Kinderbecken sowie einer großen Liegewiese zum Entspannen einlädt. Tischtennis und Beachvolleyball runden das Freizeitangebot ab.

Mit dem Auto erreichen Sie in ca. 15 Minuten Scheibbs und in ca. 30 Minuten Amstetten.

Genießen Sie die Vorzüge einer ruhigen Wohnlage, ohne auf die Annehmlichkeiten des städtischen Lebens verzichten zu müssen. Diese Wohnung in Gresten bietet Ihnen nicht nur Lebensqualität, sondern auch ein Zuhause, das auf Ihre Bedürfnisse zugeschnitten ist.

Befristung: unbefristet, 1 Jahr Kündigungsverzicht 3 Monate Kündigungsfrist

Bezug: ab sofort

Energiekennzahlen: Laut Energieausweis vom 17.08.2020 beträgt der Heizwärmebedarf 56,14 kWh/m²a (Klasse C) und der Gesamtenergieeffizienz-Faktor 1,93 (Klasse D).

Der einmalige Finanzierungsbeitrag beträgt € 9.283,94 und die monatliche Miete beläuft sich auf € 604,94 inkl. BK und Ust.

Diese Wohnung ist mehr als nur ein Ort zum Wohnen – es ist der perfekte Ort, um Ihr Leben zu gestalten. Lassen Sie sich von der charmanten Atmosphäre und der praktischen Ausstattung begeistern und machen Sie diesen Wohntraum zu Ihrem neuen Zuhause!

 

Videoimpressionen

Lage und Umgebung

500 m
Verkehrsmittel
1000 m
Kindergarten
1000 m
Schule
500 m
Bank
500 m
Supermarkt
500 m
Arzt

Downloads

0.55 mb

Anfrage senden

* Pflichtfelder