Eigentum

ERSTBEZUG "ein viertel grün" - ideal für Familien - 3 Zimmerwohnung im Herzen von Wr. Neustadt - inkl. Balkon und Tiefgaragenstellplatz - provisionsfrei

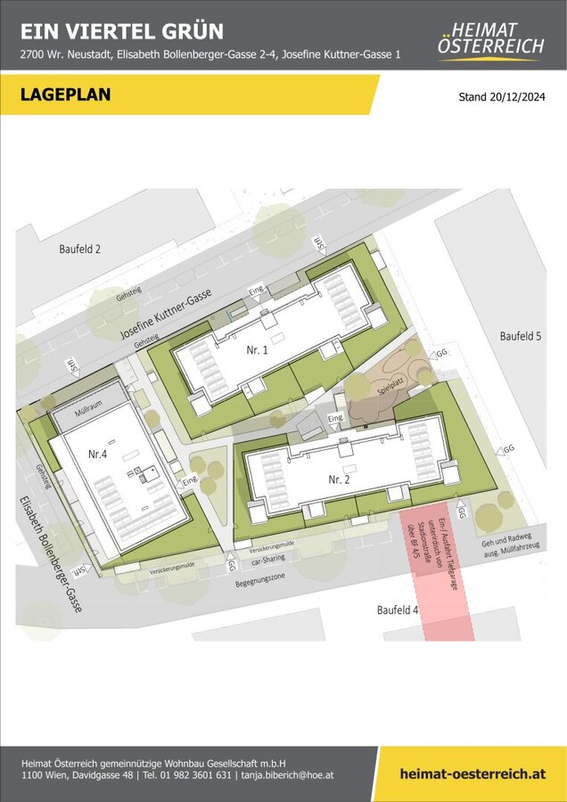
2700 Wiener Neustadt, Elisabeth Bollenberger-Gasse
Fläche
76.15 m²
Zimmer
3
Kaufpreis
289.279,00 €

Überblick

Rechtsform
Eigentum
Baujahr
2026
Immobilientyp
Wohnung
Fertigstellung
30.09.2026
Adresse
2700 Wiener Neustadt, Elisabeth Bollenberger-Gasse

Ausstattung

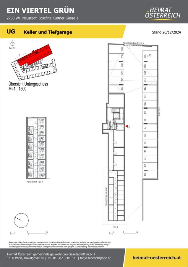
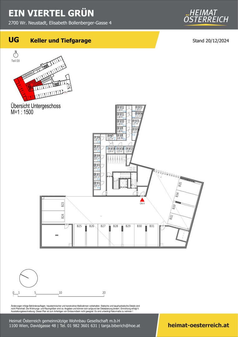
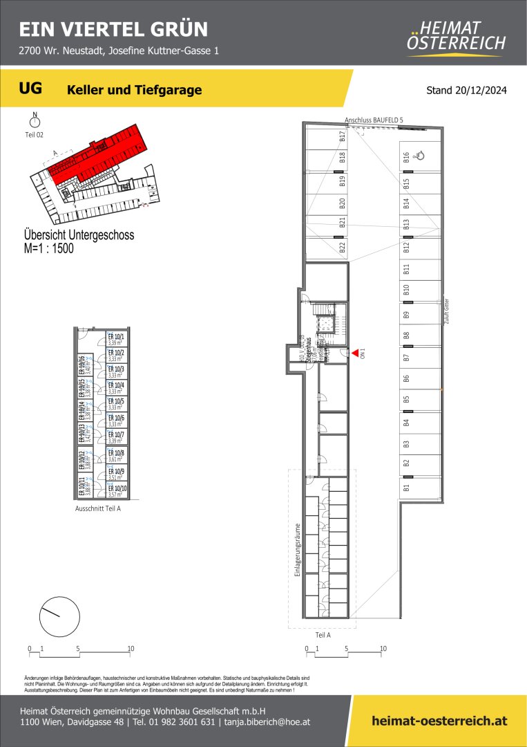
Keller
Parken
Lift

Beschreibung

Herzlich Willkommen im neuen Stadtviertel "ein viertel grün" in Wiener Neustadt!

Hier trifft modernes Wohnen auf naturnahe Umgebung - ideal für junge Familien, Paare sowie Einzelpersonen die Wert auf Lebensqualität, Gemeinschaft und Nachhaltigkeit legen.

Das gesamte Areal ist verkehrsberuhigt und umgeben von Grünflächen. Kinder können unbeschwert spielen, und Sie genießen entspannte Stunden im eigenen Garten oder auf dem Balkon.

Öffentliche Geh- und Radwege führen durch das gesamte Areal.

Ein Plus für Familien ist der moderne Kindergarten direkt im Quartier.

Ein eigener Quartierstreff bietet Raum für Begegnungen, Austausch und neue Freundschaften.

Alle wichtigen Einrichtungen für den täglichen Bedarf, sowie Nahversoger für Sie und Ihre Liebsten befinden sich in unmittelbarer Umgebung. 

Hier die Details im Überblick:

  • 51 geförderte Eigentumswohnungen
  • ca. 50m² - 90m², 2 - 4 Zimmer
  • alle Wohnungen mit Freifläche in Form von Terrasse und Eigengarten oder Balkon
  • hochwertige Laminatböden
  • Tiefgarage: Jeder Wohnung sind 1-2 Stellplätze zugeordnet und bereits im Kaufpreis inkludiert. Weitere Stellplätze können zusätzlich erworben werden.
  • Niedrigenergiebauweise
  • ruhige Lage im Grünen
  • Einlagerungsräume
  • Fahrrad- und Kinderwagenabstellräume
  • Waschküchen
  • Personenaufzug
  • Kinderspielplatz mit Sitzmöglichkeiten
  • Müllräume
  • Photovoltaik am Dach
  • HWB Wert ca. 29,4 kwh/m²a, fGEE ca. 0,56
  • Fertigstellung voraussichtlich September 2026

 

Weiters gibt es freifinanzierte Eigentumswohnungen auf diesem Areal.
Nähere Infos gibt es hier: Freifinanzierte Eigentumswohnungen

Willkommen in Ihrem neuen Zuhause in Wiener Neustadt, einer charmanten Stadt im Herzen Niederösterreichs! Diese beeindruckende Wohnung im 3. Obergeschoss ist nicht nur ein Ort zum Wohnen, sondern ein Lebensgefühl, das Sie mit jedem Schritt neu entdecken werden.

Mit einer großzügigen Fläche von 76,15 m² und einem durchdachten Grundriss, der modernes Wohnen perfekt in Szene setzt, ist diese Wohnung im Erstbezug ein idealer Rückzugsort für kleine Familien. 

Die offene Wohnküche wird durch den Zugang zu einem einladenden Balkon ergänzt, der Ihnen die Möglichkeit bietet, frische Luft und Sonnenstrahlen zu genießen. Stellen Sie sich vor, wie Sie hier entspannte Stunden oder gesellige Abende mit Freunden oder Familie verbringen.

Die beiden Schlafzimmer sind zentral vom Vorzimmer aus über einen Gang erreichbar. Dieser Gang ist auch direkt mit dem Wohnzimmer verbunden.

Das Badezimmer ist modern verfliest und mit einer Badewanne ausgestattet. Des Weiteren befinden sich ein Handwaschbecken und ein Waschmaschinenanschluss im Badezimmer. Das WC ist ebenfalls modern verfliest und separat, neben dem Badezimmer vorzufinden.

Der Abstellraum sorgt für extra Stauraum.

Diese Wohnung ist nicht nur ein Ort zum Wohnen, sondern ein Ort, an dem Sie Ihr Leben nach Ihren Vorstellungen gestalten können. Lassen Sie sich von der modernen Ausstattung und der idealen Lage überzeugen. 

Sie haben die Möglichkeit den rückzahlbaren Annuitätenzuschuss zu übernehmen. Dieser kann ggfls. auf Ihr Fremdfinanzierungsdarlehen übertragen werden.
Der Höchstbetrag des Annuitätenzuschusses beträgt ca. € 330,83 pro Monat.

Erleichterte Finanzierungsmöglichkeit durch Übernahme der Förderung und des Bankdarlehen – beides kann bei unserem Projekt übernommen werden und somit Ihre Gesamtkosten senken.

Nähere Details zu Ihrer Traumimmobilie entnehmen Sie den Dokumenten. 

Kaufpreis Wohnung inkl. Stellplatz: € 289.279,--

Diese Wohnung ist nicht nur ein Ort zum Wohnen, sondern ein Ort, an dem Sie sich rundum wohlfühlen können. Dieses Schmuckstück wartet nur darauf, von Ihnen entdeckt zu werden!

Lage und Umgebung

250 m
Verkehrsmittel
500 m
Supermarkt
500 m
Bank
750 m
Kindergarten
250 m
Schule
750 m
Arzt

Downloads

0.52 mb
0.12 mb

Anfrage senden

* Pflichtfelder