St. Pölten - Jetzt Ihre Traumwohnung sichern! Geförderte Mietwohnungen in der Stifterstraße
Miete

ERSTBEZUG „ein viertel grün“ in Wiener Neustadt - 3 Zimmerwohnung mit eigener Gartenoase

2700 Wiener Neustadt, Stadionstraße
Fläche
78.51 m²
Zimmer
3
Mietpreis
1.041,81 €

Überblick

Rechtsform
Miete
Baujahr
2025
Immobilientyp
Wohnung
Fertigstellung
31.03.2026
Adresse
2700 Wiener Neustadt, Stadionstraße

Ausstattung

Terrasse
Keller
Garten
Parken
Lift

Beschreibung

Willkommen in Ihrem neuen Zuhause in Wiener Neustadt!

In unserem neuen Wohnquartier trifft modernes Wohnen auf naturnahe Umgebung – ideal für junge Familien, Paare sowie Einzelpersonen die Wert auf Lebensqualität, Gemeinschaft und Nachhaltigkeit legen.

Das Projekt bietet besten Wohnkomfort für Familien, direkt im Quartier befindet sich ein moderner Kindergarten. Hier werden Ihre Kleinen optimal betreut - und das ganz in Ihrer Nähe Ihres Wohnortes. 

Nach dem Kindergarten können sich die Kinder noch auf den diversen Spiel- und Bewegungsmöglichkeiten austoben, welche sich über das gesamte Areal erstrecken. 

Ein eigener Quartierstreff sorgt für regen Austausch unter Nachbarn und lässt garantiert neue Freundschaften bei Groß und Klein entstehen. 

Das gesamte Areal ist verkehrsberuhigt und umgeben von Grünflächen. Sie müssen jedoch aufgrund der hervorragenden Lage nicht auf die Annehmlichkeiten der Stadt verzichten. 

Diverse Geschäfte des täglichen Bedarfs befinden sich in unmittelbarer Nähe und sind fußläufig erreichbar (Merkur City).

Hier die Details zu unserem Projekt im Überblick:

  • 42 geförderte Mietwohnungen
  • 2 - 4 Zimmerca. 51 m² - 89 m² 
  • Jede Wohnung mit Eigengarten und Terrasse, Balkon oder Dachterrasse 
  • hochwertige Laminatböden
  • gut durchdachte Grundrisse
  • Tiefgaragenstellplatz, bereits in der Miete inkludiert
  • Fahrrad- und Kinderwagenräume
  • Einlagerungsräume
  • Personenaufzug
  • Müllraum
  • effiziente Photovoltaikanlage am Dach
  • kontrollierte Wohnraumlüftung mit Wärmerückgewinnung und zentraler Lüftungsanlage
  • HWB Wert ca. 26,26 kWh/m²a, fGEE ca. 0,63
  • sofort beziehbar

 

Hier geht es zu weiteren Mietwohnungen: Geförderte Mietwohnungen "ein viertel grün"

 

Willkommen in Ihrem neuen Zuhause!

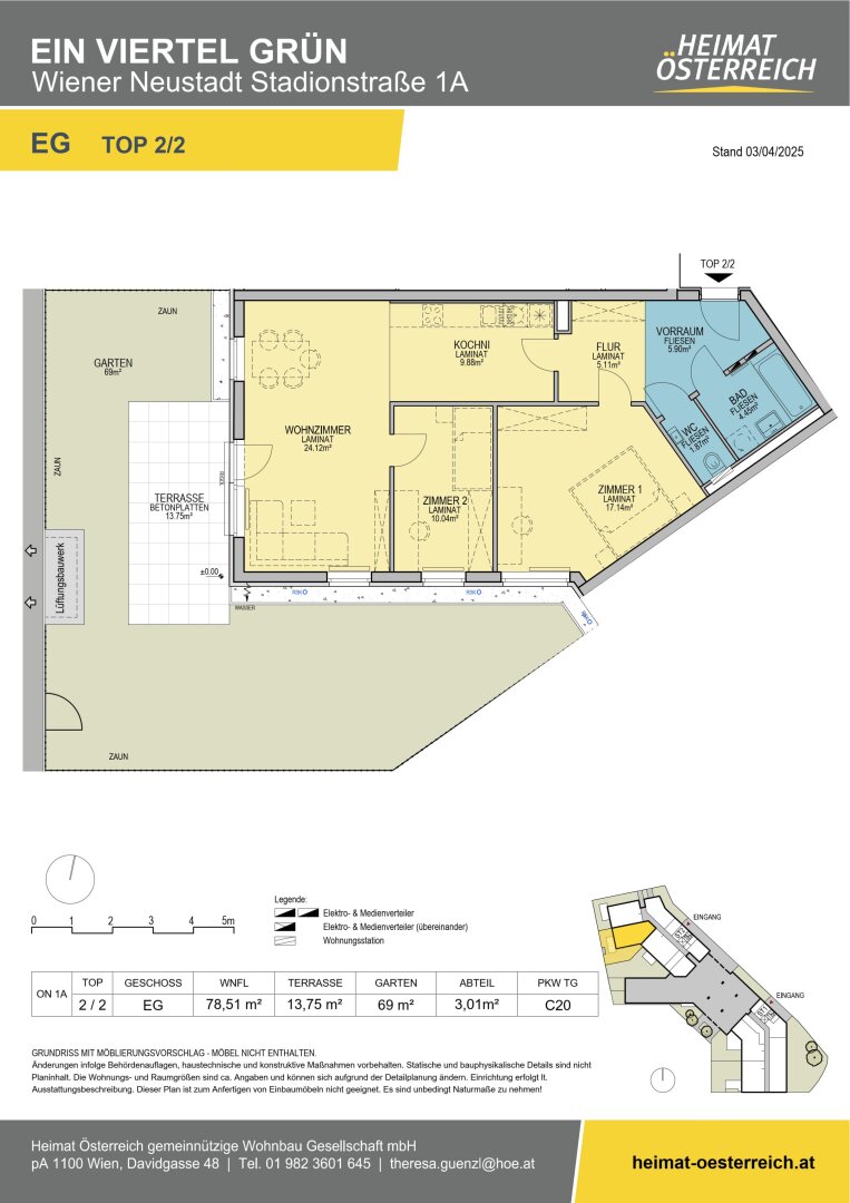
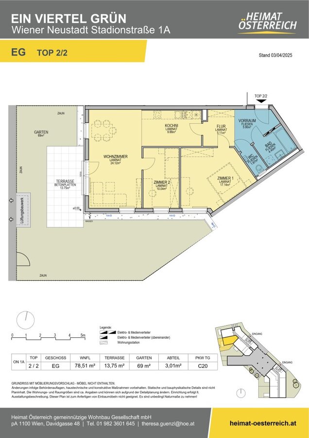
Diese exquisite 3 Zimmer Gartenwohnung mit ca. 79m² hat garantiert alles, was das Herz begehrt. Die Wohnung besticht durch ihr durchdachtes Raumkonzept und die hochwertige Ausstattung. Aufgrund der Größe ist diese Wohnung optimal für Pärchen oder kleine Familien geeignet die gerne im Grünen wohnen.

Der Erstbezug dieser Wohnung garantiert Ihnen ein frisches, neues Zuhause, in dem Sie Ihre persönlichen Vorstellungen und Wünsche sofort umsetzen können. Die durchdachte Raumaufteilung sorgt für ein harmonisches Wohngefühl.

Das Wohnzimmer ist äußerst großzügig angelegt. Die Kochnische ist optisch ein wenig vom Wohnbereich abgeteilt.

Vom Wohnzimmer gelangen Sie auf die Terrasse und in den herrlichen Eigengarten. Hier befindet sich Ihre eigene Gartenoase - einfach entspannen und abschalten, das Sonntagsfrühstück mit der Familie genießen oder gesellige Stunden mit Freunden verbringen.

Ein Schlafzimmer ist direkt vom Vorzimmer aus, über einen kleinen Flur, begehbar. Das zweite Schlafzimmer erreichen Sie direkt vom Wohnzimmer aus. Beide Schlafzimmer blicken auf die eigene Terrasse bzw. in den Garten. 

Das Badezimmer ist modern verfliest und mit einer Badewanne ausgestattet. Des Weiteren befinden sich ein Handwaschbecken und ein Waschmaschinenanschluss im Badezimmer. Das WC ist ebenfalls modern verfliest und separat, neben dem Badezimmer vorzufinden.

Mit einem Tiefgaragenstellplatz ist bestens für Ihren PKW gesorgt. Dieser ist bereits in der Miete inkludiert!

Befristung: unbefristet, 1 Jahr Kündigungsverzicht 3 Monate Kündigungsfrist

Bezug: sofort beziehbar

Energiekennzahlen:  Der Heizwärmebedarf  beträgt ca. 26,26 kWh/m²a Klasse B und der Gesamtenergieeffizienz-Faktor ca. 0,63 Klasse A+.

Die monatliche Miete beläuft sich auf € 1.041,81 inkl. BK und Ust. und der einmalige Finanzierungsbeitrag beträgt € 27.478,50.

Diese Gartenwohnung in Wiener Neustadt ist ein wahres Schmuckstück, das modernes Wohnen mit einem hohen Lebensstandard vereint. Ihr neues Zuhause wartet auf Sie!

Der Immobilienmakler erklärt, dass er – entgegen dem in der Immobilienwirtschaft üblichen Geschäftsgebrauch des Doppelmaklers – einseitig nur für den Vermieter tätig ist.

Lage und Umgebung

250 m
Verkehrsmittel
500 m
Supermarkt
750 m
Bank
500 m
Kindergarten
250 m
Schule
1000 m
Arzt

Downloads

0.11 mb
0.4 mb
0.28 mb
0.16 mb
0.13 mb
0.11 mb
0.09 mb

Anfrage senden

* Pflichtfelder