Miete

ERSTBEZUG „ein viertel grün“ in Wiener Neustadt - 4 Zimmer Familientraum

2700 Wiener Neustadt, Stadionstraße
Fläche
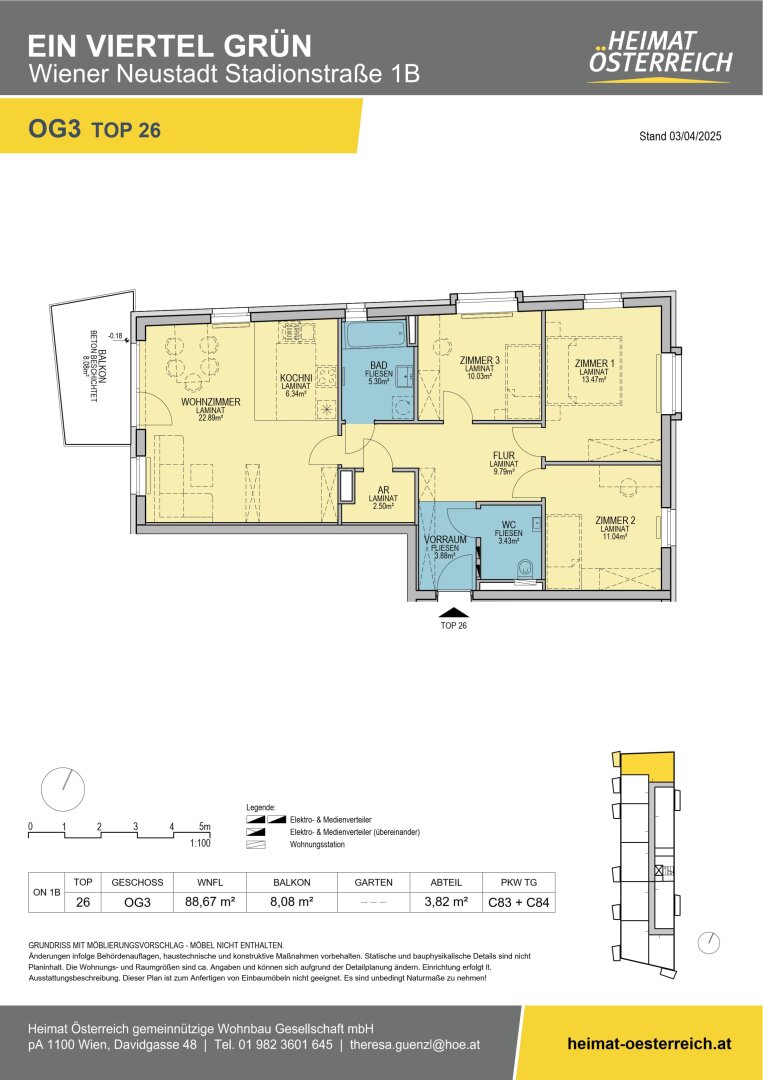
88.67 m²
Zimmer
4
Mietpreis
1.190,31 €

Überblick

Rechtsform
Miete
Baujahr
2025
Immobilientyp
Wohnung
Fertigstellung
31.03.2026
Adresse
2700 Wiener Neustadt, Stadionstraße

Ausstattung

Keller
Parken
Lift

Beschreibung

Willkommen in Ihrem neuen Zuhause in Wiener Neustadt!

In unserem erstklassigen Wohnquartier bleiben keine Wünsche offen! Hier trifft modernes und zentrumnahes Wohnen auf naturnahe Umgebung - ideal für junge Familien, Paare sowie Einzelpersonen die Wert auf Lebensqualität, Gemeinschaft und Nachhaltigkeit legen.

Familien sind hier bestens versorgt. Direkt im Quartier befindet sich ein moderner Kindergarten. Hier werden Ihre Kleinen optimal betreut - und das ganz in Ihrer Nähe. Nach dem Kindergarten können sich die Kinder noch auf den diversen Spielgeräten austoben. Für die Eltern ist mit Sitzgelegenheiten gesorgt.

Ein eigener Quartierstreff auf dem Areal sorgt für regen Austausch unter Nachbarn und lässt garantiert neue Freundschaften bei Groß und Klein entstehen. 

Das gesamte Areal ist verkehrsberuhigt und umgeben von Grünflächen. Sie müssen jedoch aufgrund der hervorragenden Lage nicht auf die Annehmlichkeiten der Stadt verzichten. 

Sie genießen all die Vorzüge eines urbanen Lebensstil mitten im Grünen!

Hier die Details zu unserem Projekt im Überblick:

  • 39 geförderte Mietwohnungen
  • 2 - 4 Zimmer, ca. 51 m² - 89 m²
  • alle Wohnungen mit Eigengarten und Terrasse bzw. Balkon oder Dachterrasse
  • hochwertige Laminatböden
  • gut durchdachte Grundrisse
  • Tiefgaragenstellplatz, bereits in der Miete inkludiert
  • Fahrrad- und Kinderwageneinstellräume
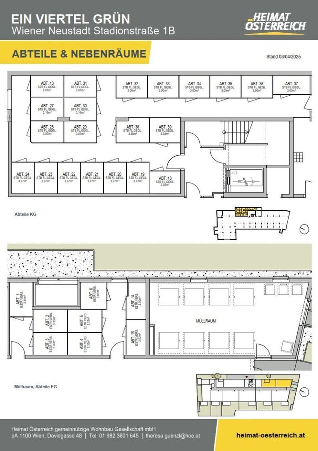
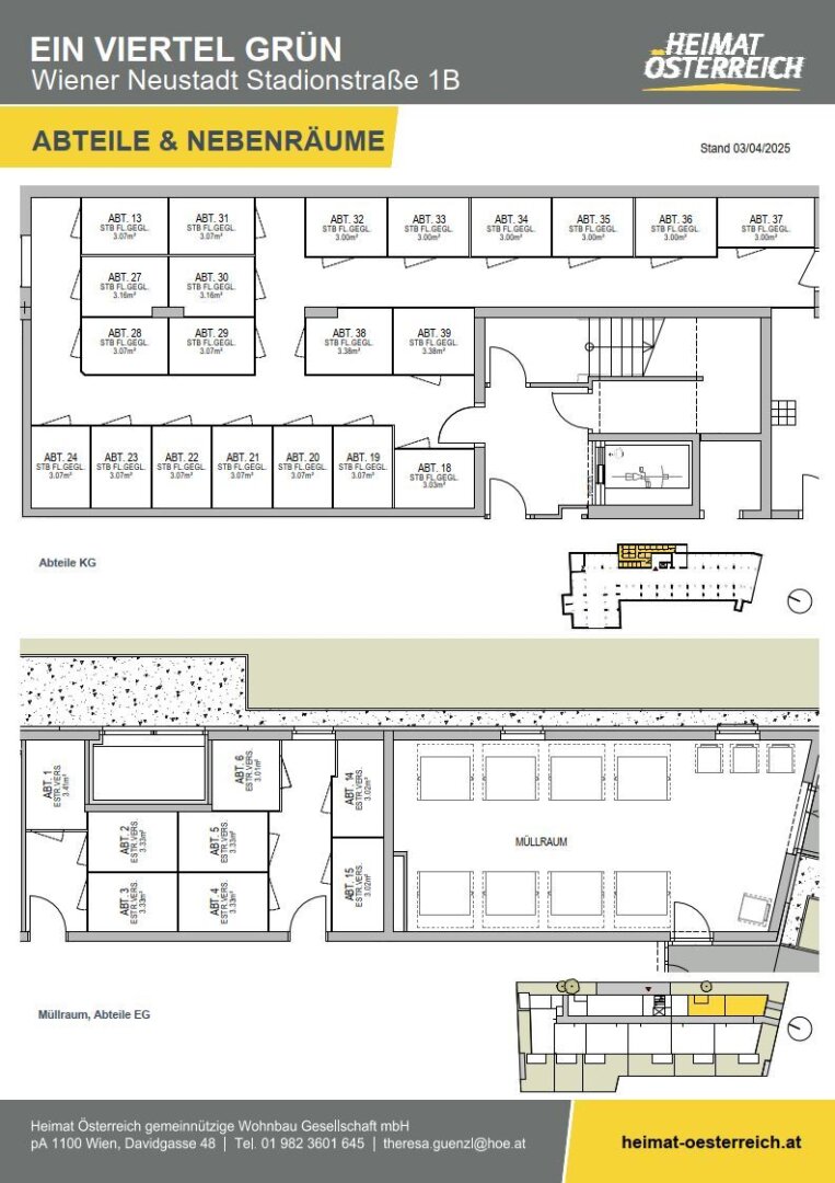
  • Einlagerungsräume
  • Personenaufzug
  • Müllraum
  • effiziente Photovoltaikanlage am Dach
  • kontrollierte Wohnraumlüftung mit Wärmerückgewinnung und zentraler Lüftungsanlage
  • HWB Wert ca. 23,66 kWh/m²a, fGEE ca. 0,63
  • Fertigstellung voraussichtlich Frühjahr 2026

 

Anm.: Die winterlichen Bilder wurden mittels KI erstellt.

Willkommen in Ihrem neuen Zuhause!

Diese moderne 4-Zimmer-Wohnung im 3. Obergeschoss bietet auf ca. 89 m² eine perfekte Kombination aus großzügigem Wohnraum und erstklassiger Lage.

Genießen Sie den Vorteil eines Erstbezugs und ziehen Sie in eine frisch gestaltete Wohnung, die modernen Wohnkomfort auf höchstem Niveau bietet.

Der durchdachte Grundriss dieser Wohnung ermöglicht eine optimale Nutzung. Ob modernes Wohnzimmer, stilvolles Schlafzimmer oder funktionale Kinderzimmer – hier findet jeder seinen persönlichen Rückzugsort. 

Das geräumige Wohnzimmer ist ein Highlight und bietet viel Platz für Ihre Einrichtungsideen. Die Kochnische fügt sich perfekt in den offenen Wohnbereich ein und schafft so eine angenehme, harmonische Atmosphäre.

Vom Wohnzimmer gelangen Sie auf den herrlichen Balkon. Hier können Sie das Sonntagsfrühstück mit der Familie genießen oder gesellige Stunden mit Freunden verbringen.

Alle Zimmer sind zentral vom Vorzimmer aus, über einen Flur begehbar.

Ein Abstellraum sorgt für zusätzlichen Stauraum, ideal für alles, was ordentlich verstaut werden muss.

Das Badezimmer ist modern verfliest und mit einer Badewanne ausgestattet. Ein Handwaschbecken und ein Waschmaschinenanschluss runden die Ausstattung ab. Besonders schön ist das Fenster, das für Tageslicht sorgt.

Das WC ist ebenfalls modern verfliest.

Mit zwei Tiefgaragenstellplätzen ist bestens für Ihre PKWs gesorgt. Diese sind bereits in der Miete inkludiert!

Befristung: unbefristet, 1 Jahr Kündigungsverzicht 3 Monate Kündigungsfrist

Bezug: voraussichtlich Frühjahr 2026

Energiekennzahlen:  Der Heizwärmebedarf  beträgt ca. 23,66 kWh/m²a Klasse B und der Gesamtenergieeffizienz-Faktor ca. 0,63 Klasse A+.

Die monatliche Miete beläuft sich auf € 1.190,31 inkl. BK und Ust. und der einmalige Finanzierungsbeitrag beträgt € 31.034,50.

Lassen Sie sich diese Gelegenheit nicht entgehen – Ihr neues Zuhause in Wiener Neustadt wartet auf Sie!

Hier geht es zu weiteren Mietwohnungen: 
Geförderte Mietwohnungen - ein viertel grün

Anm.: Die winterlichen Bilder wurden mittels KI erstellt.

Lage und Umgebung

250 m
Verkehrsmittel
250 m
Supermarkt
750 m
Bank
500 m
Kindergarten
250 m
Schule
1000 m
Arzt

Downloads

0.1 mb
0.28 mb
0.41 mb
0.16 mb

Anfrage senden

* Pflichtfelder