Miete

ERSTBEZUG „ein viertel grün“ in Wiener Neustadt - Pärchentraum inkl. Balkon

2700 Wiener Neustadt, Stadionstraße
Fläche
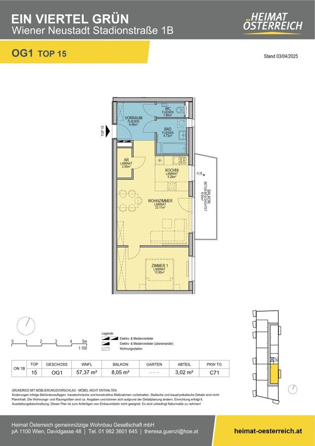
57.37 m²
Zimmer
2
Mietpreis
732,75 €

Überblick

Rechtsform
Miete
Baujahr
2025
Immobilientyp
Wohnung
Fertigstellung
31.03.2026
Adresse
2700 Wiener Neustadt, Stadionstraße

Ausstattung

Keller
Parken
Lift

Beschreibung

Willkommen in Ihrem neuen Zuhause in Wiener Neustadt!

In unserem erstklassigen Wohnquartier bleiben keine Wünsche offen! Hier trifft modernes und zentrumnahes Wohnen auf naturnahe Umgebung - ideal für junge Familien, Paare sowie Einzelpersonen die Wert auf Lebensqualität, Gemeinschaft und Nachhaltigkeit legen.

Familien sind hier bestens versorgt. Direkt im Quartier befindet sich ein moderner Kindergarten. Hier werden Ihre Kleinen optimal betreut - und das ganz in Ihrer Nähe. Nach dem Kindergarten können sich die Kinder noch auf den diversen Spielgeräten austoben. Für die Eltern ist mit Sitzgelegenheiten gesorgt.

Ein eigener Quartierstreff auf dem Areal sorgt für regen Austausch unter Nachbarn und lässt garantiert neue Freundschaften bei Groß und Klein entstehen. 

Das gesamte Areal ist verkehrsberuhigt und umgeben von Grünflächen. Sie müssen jedoch aufgrund der hervorragenden Lage nicht auf die Annehmlichkeiten der Stadt verzichten. 

Sie genießen all die Vorzüge eines urbanen Lebensstil mitten im Grünen!

Hier die Details zu unserem Projekt im Überblick:

  • 39 geförderte Mietwohnungen
  • 2 - 4 Zimmer, ca. 51 m² - 89 m²
  • alle Wohnungen mit Eigengarten und Terrasse bzw. Balkon oder Dachterrasse
  • hochwertige Laminatböden
  • gut durchdachte Grundrisse
  • Tiefgaragenstellplatz, bereits in der Miete inkludiert
  • Fahrrad- und Kinderwageneinstellräume
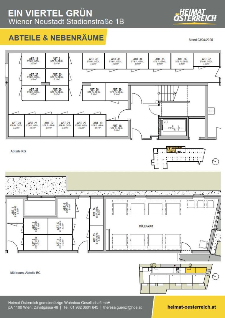
  • Einlagerungsräume
  • Personenaufzug
  • Müllraum
  • effiziente Photovoltaikanlage am Dach
  • kontrollierte Wohnraumlüftung mit Wärmerückgewinnung und zentraler Lüftungsanlage
  • HWB Wert ca. 23,66 kWh/m²a, fGEE ca. 0,63
  • Fertigstellung voraussichtlich Frühjahr 2026

 

Anm.: Die winterlichen Bilder wurden mittels KI erstellt.

Willkommen in Ihrem neuen Zuhause!

Diese großzügige 2-Zimmer-Wohnung im ersten Obergeschoss bietet auf etwa 57 m² alles, was Sie für ein komfortables und angenehmes Zuhause benötigen. Die ideale Größe macht sie besonders geeignet für Paare oder Singles.

Neben einem stilvollen Wohnambiente überzeugt die Wohnung durch eine durchdachte Raumaufteilung, die höchsten Komfort garantiert.

Als Erstbezug haben Sie die Möglichkeit, die Räumlichkeiten nach Ihren eigenen Vorstellungen zu gestalten.

Vom Wohnzimmer aus erreichen Sie den wunderschönen Balkon, der Ihnen zahlreiche entspannte Stunden im Freien oder einen ruhigen Ausklang des Tages ermöglicht. Der Küchenbereich ist mit einem eigenen Fenster ausgestattet, das einen Blick auf den Balkon bietet. Direkt neben der Kochnische befindet sich ein Abstellraum, der sich hervorragend als Speis eignet.

Das Schlafzimmer ist vom Wohnzimmer aus zugänglich.

Das moderne Badezimmer ist mit einer Badewanne, einem Handwaschbecken und einem Waschmaschinenanschluss ausgestattet. Besonders angenehm ist das Fenster im Badezimmer, das Ihnen täglich Tageslicht bietet.

Das WC ist separat angelegt und befindet sich gleich neben dem Badezimmer.

Mit einem Tiefgaragenabstellplatz ist bestens für Ihren PKW gesorgt. Dieser ist bereits in der Miete inkludiert!

Befristung: unbefristet, 1 Jahr Kündigungsverzicht 3 Monate Kündigungsfrist

Bezug: voraussichtlich Frühjahr 2026

Energiekennzahlen:  Der Heizwärmebedarf  beträgt ca. 23,66 kWh/m²a Klasse B und der Gesamtenergieeffizienz-Faktor ca. 0,63 Klasse A+.

Die monatliche Miete beläuft sich auf € 732,75 inkl. BK und Ust. und der einmalige Finanzierungsbeitrag beträgt € 20.079,50.

Zögern Sie nicht und sichern Sie sich diese einzigartige Wohnung, die modernes Wohnen mit einer hervorragenden Lage kombiniert.

Hier geht es zu weiteren Mietwohnungen: 
Geförderte Mietwohnungen - ein viertel grün

Anm.: Die winterlichen Bilder wurden mittels KI erstellt.

Lage und Umgebung

250 m
Verkehrsmittel
250 m
Supermarkt
750 m
Bank
500 m
Kindergarten
250 m
Schule
1000 m
Arzt

Downloads

0.09 mb
0.28 mb
0.41 mb
0.16 mb

Anfrage senden

* Pflichtfelder