Miete

ERSTBEZUG „ein viertel grün“ in Wiener Neustadt - herrliche 3 Zimmerwohnung mit Balkon

2700 Wiener Neustadt, Stadionstraße
Fläche
71.08 m²
Zimmer
3
Mietpreis
907,86 €

Überblick

Rechtsform
Miete
Baujahr
2025
Immobilientyp
Wohnung
Fertigstellung
31.03.2026
Adresse
2700 Wiener Neustadt, Stadionstraße

Ausstattung

Keller
Parken
Lift

Beschreibung

Willkommen in Ihrem neuen Zuhause in Wiener Neustadt!

In unserem erstklassigen Wohnquartier bleiben keine Wünsche offen! Hier trifft modernes und zentrumnahes Wohnen auf naturnahe Umgebung - ideal für junge Familien, Paare sowie Einzelpersonen die Wert auf Lebensqualität, Gemeinschaft und Nachhaltigkeit legen.

Familien sind hier bestens versorgt. Direkt im Quartier befindet sich ein moderner Kindergarten. Hier werden Ihre Kleinen optimal betreut - und das ganz in Ihrer Nähe. Nach dem Kindergarten können sich die Kinder noch auf den diversen Spielgeräten austoben. Für die Eltern ist mit Sitzgelegenheiten gesorgt.

Ein eigener Quartierstreff auf dem Areal sorgt für regen Austausch unter Nachbarn und lässt garantiert neue Freundschaften bei Groß und Klein entstehen. 

Das gesamte Areal ist verkehrsberuhigt und umgeben von Grünflächen. Sie müssen jedoch aufgrund der hervorragenden Lage nicht auf die Annehmlichkeiten der Stadt verzichten. 

Sie genießen all die Vorzüge eines urbanen Lebensstil mitten im Grünen!

Hier die Details zu unserem Projekt im Überblick:

  • 39 geförderte Mietwohnungen
  • 2 - 4 Zimmer, ca. 51 m² - 89 m²
  • alle Wohnungen mit Eigengarten und Terrasse bzw. Balkon oder Dachterrasse
  • hochwertige Laminatböden
  • gut durchdachte Grundrisse
  • Tiefgaragenstellplatz, bereits in der Miete inkludiert
  • Fahrrad- und Kinderwageneinstellräume
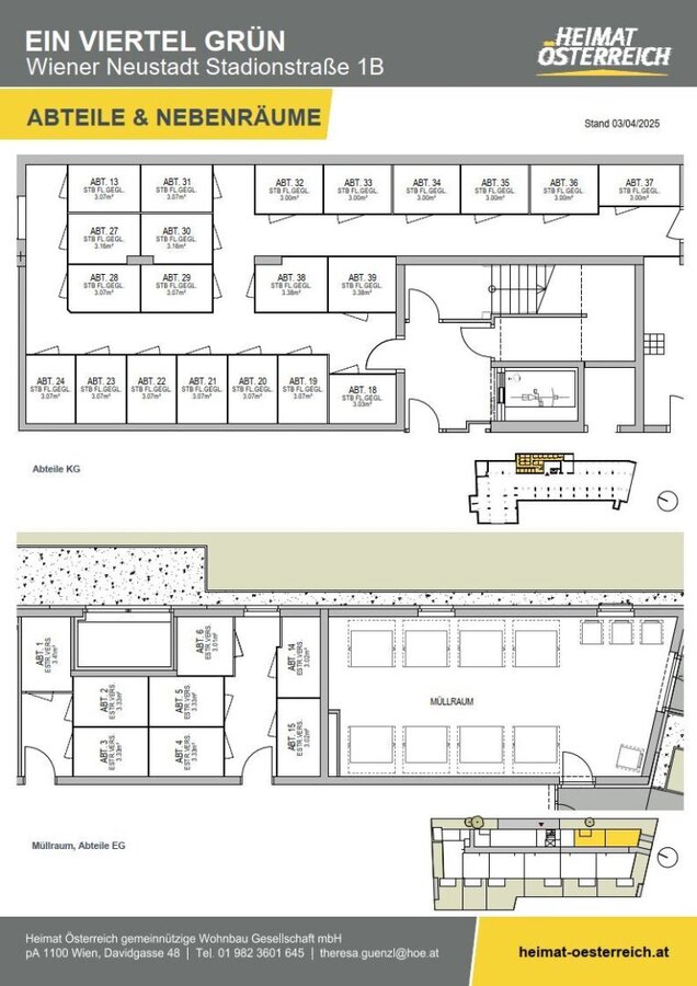
  • Einlagerungsräume
  • Personenaufzug
  • Müllraum
  • effiziente Photovoltaikanlage am Dach
  • kontrollierte Wohnraumlüftung mit Wärmerückgewinnung und zentraler Lüftungsanlage
  • HWB Wert ca. 23,66 kWh/m²a, fGEE ca. 0,63
  • Fertigstellung voraussichtlich Frühjahr 2026

 

Anm.: Die winterlichen Bilder wurden mittels KI erstellt.

Willkommen in Ihrem neuen Zuhause!

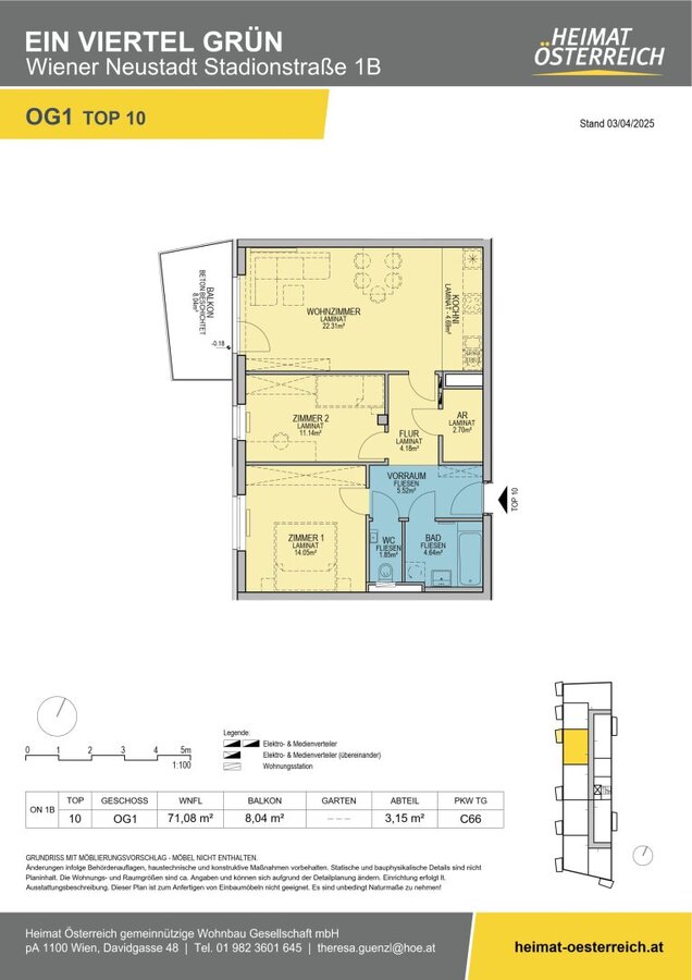
Die 3 Zimmerwohnung im 1. Obergeschoss bietet Ihnen auf ca. 71m² alles, was Sie für ein modernes und entspanntes Wohnen benötigen. Aufgrund der Größe ist diese Wohnung hervorragend für Paare oder kleine Familien geeignet. 

Die Mietwohnung ist ein Erstbezug und verkörpert zeitgemäßen Wohnkomfort. Mit drei hellen und freundlichen Zimmern haben Sie ausreichend Platz zum Entspannen und Wohlfühlen. Genießen Sie die frische Luft und die Aussicht von Ihrem eigenen Balkon – ein idealer Ort, um den Tag mit einem Kaffee zu beginnen oder den Abend entspannt ausklingen zu lassen.

Das Wohnzimmer ist äußerst großzügig angelegt. Die Kochnische fügt sich harmonisch in den Wohnbereich ein.

Ein Schlafzimmer ist direkt vom Vorraum aus begehbar. Das zweite Schlaf- bzw. Kinderzimmer erreicht man über einen Flur, sowohl vom Vorzimmer, als auch vom Wohnzimmer aus.

Der Abstellraum sorgt für extra Stauraum. 

Das Badezimmer ist modern verfliest und mit einer Badewanne ausgestattet. Des Weiteren befinden sich ein Handwaschbecken und ein Waschmaschinenanschluss im Badezimmer. Das WC ist ebenfalls modern verfliest.

Mit einem Tiefgaragenabstellplatz ist bestens für Ihren PKW gesorgt. Dieser ist bereits in der Miete inkludiert!

Befristung: unbefristet, 1 Jahr Kündigungsverzicht 3 Monate Kündigungsfrist

Bezug: voraussichtlich Frühjahr 2026

Energiekennzahlen:  Der Heizwärmebedarf  beträgt ca. 23,66 kWh/m²a Klasse B und der Gesamtenergieeffizienz-Faktor ca. 0,63 Klasse A+.

Die monatliche Miete beläuft sich auf € 907,86 inkl. BK und Ust. und der einmalige Finanzierungsbeitrag beträgt € 24.878,--

Wenn Sie auf der Suche nach einem neuen Zuhause sind, das modern, komfortabel und praktisch gelegen ist, dann ist diese Wohnung in Wiener Neustadt genau das Richtige für Sie.

Hier geht es zu weiteren Mietwohnungen: 
Geförderte Mietwohnungen - ein viertel grün

Anm.: Die winterlichen Bilder wurden mittels KI erstellt.

Lage und Umgebung

250 m
Verkehrsmittel
250 m
Supermarkt
750 m
Bank
500 m
Kindergarten
250 m
Schule
1000 m
Arzt

Downloads

0.09 mb
0.28 mb
0.41 mb
0.16 mb

Anfrage senden

* Pflichtfelder