ERSTBEZUG "ein viertel grün" in Wr. Neustadt - Top Lage - ansprechende 3 Zimmerwohnung mit Balkon - inkl. Tiefgaragenstellplatz in bester Lage - provisionsfrei
Überblick
Ausstattung
Beschreibung
Herzlich Willkommen im neuen Stadtviertel "ein viertel grün" in Wiener Neustadt!
Hier trifft modernes Wohnen auf naturnahe Umgebung - ideal für junge Familien, Paare sowie Einzelpersonen die Wert auf Lebensqualität, Gemeinschaft und Nachhaltigkeit legen.
Das gesamte Areal ist verkehrsberuhigt und umgeben von Grünflächen. Kinder können unbeschwert spielen, und Sie genießen entspannte Stunden im eigenen Garten oder auf dem Balkon.
Öffentliche Geh- und Radwege führen durch das gesamte Areal.
Ein Plus für Familien ist der moderne Kindergarten direkt im Quartier.
Ein eigener Quartierstreff bietet Raum für Begegnungen, Austausch und neue Freundschaften.
Alle wichtigen Einrichtungen für den täglichen Bedarf, sowie Nahversoger für Sie und Ihre Liebsten befinden sich in unmittelbarer Umgebung.
Hier die Details im Überblick:
- 51 geförderte Eigentumswohnungen
- ca. 50m² - 90m², 2 - 4 Zimmer
- alle Wohnungen mit Freifläche in Form von Terrasse und Eigengarten oder Balkon
- hochwertige Laminatböden
- Tiefgarage: Jeder Wohnung sind 1-2 Stellplätze zugeordnet und bereits im Kaufpreis inkludiert. Weitere Stellplätze können zusätzlich erworben werden.
- Niedrigenergiebauweise
- ruhige Lage im Grünen
- Einlagerungsräume
- Fahrrad- und Kinderwagenabstellräume
- Waschküchen
- Personenaufzug
- Kinderspielplatz mit Sitzmöglichkeiten
- Müllräume
- Photovoltaik am Dach
- HWB Wert ca. 29,4 kwh/m²a, fGEE ca. 0,56
- Fertigstellung voraussichtlich September 2026
Weiters gibt es freifinanzierte Eigentumswohnungen auf diesem Areal.
Nähere Infos gibt es hier: Freifinanzierte Eigentumswohnungen
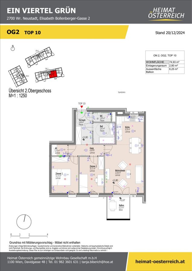
Willkommen in Ihrem neuen Zuhause in der charmanten Stadt Wiener Neustadt! Diese exklusive Wohnung im 2. Obergeschoss bietet Ihnen nicht nur modernen Komfort, sondern auch eine hervorragende Lebensqualität in einer der schönsten Regionen Niederösterreichs.
Mit einer Wohnfläche von 74,93 m² und drei lichtdurchfluteten Zimmern ist diese Immobilie der ideale Ort für Paare, Familien oder Singles, die das Besondere suchen. Der Erstbezug garantiert Ihnen, dass Sie das Gefühl von Neuheit und Frische in jedem Raum genießen können.
Ein Highlight dieser Wohnung ist der einladende Balkon, auf dem Sie entspannte Stunden im Freien verbringen und die frische Luft genießen können. Hier können Sie Ihren Tag mit einem Kaffee beginnen oder den Abend mit Freunden oder Familie ausklingen lassen.
Das Wohnzimmer ist sehr geräumig angelegt und der Küchenbereich fügt sich harmonisch ein. Von der Wohnküche aus gelangen Sie auf den Balkon.
Die beiden Schlafzimmer sind zentral vom Vorzimmer aus über einen Gang erreichbar. Dieser Gang ist auch direkt mit dem Wohnzimmer verbunden.
Das Badezimmer ist modern verfliest und mit einer Badewanne ausgestattet. Des Weiteren befinden sich ein Handwaschbecken und ein Waschmaschinenanschluss im Badezimmer. Das WC ist ebenfalls modern verfliest und separat, neben dem Badezimmer vorzufinden.
Der Abstellraum sorgt für extra Stauraum.
Diese Wohnung ist nicht nur ein Ort zum Wohnen, sondern ein Ort, an dem Sie Ihr Leben nach Ihren Vorstellungen gestalten können. Lassen Sie sich von der modernen Ausstattung und der idealen Lage überzeugen.
Sie haben die Möglichkeit den rückzahlbaren Annuitätenzuschuss zu übernehmen. Dieser kann ggfls. auf Ihr Fremdfinanzierungsdarlehen übertragen werden.
Der Höchstbetrag des Annuitätenzuschusses beträgt ca. € 325,53 pro Monat.
Erleichterte Finanzierungsmöglichkeit durch Übernahme der Förderung und des Bankdarlehen – beides kann bei unserem Projekt übernommen werden und somit Ihre Gesamtkosten senken.
Nähere Details zu Ihrer Traumimmobilie entnehmen Sie den Dokumenten.
Kaufpreis Wohnung inkl. Stellplatz: € 273.385,--
Ihr neues Zuhause in Wiener Neustadt wartet auf Sie – ein Ort, an dem Lifestyle und Lebensqualität aufeinandertreffen.
Downloads
 
        
        
    