ERSTBEZUG "ein viertel grün" in Wr. Neustadt - schöne 3 Zimmerwohnung mit Balkon - inkl. Tiefgaragenstellplatz in bester Lage - provisionsfrei
Überblick
Ausstattung
Beschreibung
Herzlich Willkommen im neuen Stadtviertel "ein viertel grün" in Wiener Neustadt!
Hier trifft modernes Wohnen auf naturnahe Umgebung - ideal für junge Familien, Paare sowie Einzelpersonen die Wert auf Lebensqualität, Gemeinschaft und Nachhaltigkeit legen.
Das gesamte Areal ist verkehrsberuhigt und umgeben von Grünflächen. Kinder können unbeschwert spielen, und Sie genießen entspannte Stunden im eigenen Garten oder auf dem Balkon.
Öffentliche Geh- und Radwege führen durch das gesamte Areal.
Ein Plus für Familien ist der moderne Kindergarten direkt im Quartier.
Ein eigener Quartierstreff bietet Raum für Begegnungen, Austausch und neue Freundschaften.
Alle wichtigen Einrichtungen für den täglichen Bedarf, sowie Nahversoger für Sie und Ihre Liebsten befinden sich in unmittelbarer Umgebung.
Hier die Details im Überblick:
- 51 geförderte Eigentumswohnungen
- ca. 50m² - 90m², 2 - 4 Zimmer
- alle Wohnungen mit Freifläche in Form von Terrasse und Eigengarten oder Balkon
- hochwertige Laminatböden
- Tiefgarage: Jeder Wohnung sind 1-2 Stellplätze zugeordnet und bereits im Kaufpreis inkludiert. Weitere Stellplätze können zusätzlich erworben werden.
- Niedrigenergiebauweise
- ruhige Lage im Grünen
- Einlagerungsräume
- Fahrrad- und Kinderwagenabstellräume
- Waschküchen
- Personenaufzug
- Kinderspielplatz mit Sitzmöglichkeiten
- Müllräume
- Photovoltaik am Dach
- HWB Wert ca. 29,4 kwh/m²a, fGEE ca. 0,56
- Fertigstellung voraussichtlich September 2026
Weiters gibt es freifinanzierte Eigentumswohnungen auf diesem Areal.
Nähere Infos gibt es hier: Freifinanzierte Eigentumswohnungen
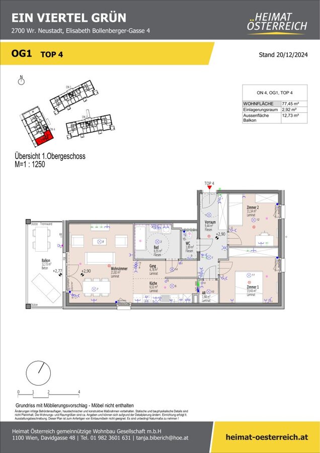
Willkommen in Ihrem neuen Zuhause in der aufstrebenden Stadt Wiener Neustadt! Diese wunderschöne 3-Zimmer-Wohnung im 1. Obergeschoss ist der perfekte Ort für alle, die modernen Komfort und eine erstklassige Lage schätzen.
Die Wohnung überzeugt nicht nur durch ihren modernen Erstbezug, sondern auch durch eine großzügige Fläche von ca. 77m², die Ihnen ausreichend Platz für individuelles Wohnen und Entspannen bietet.
Die Wohnküche ist äußerst großzügig angelegt. Von dieser gelangt man auf den schönen Balkon. Hier können Sie entspannte Stunden im Freien verbringen oder das Frühstück genießen. Dieser Rückzugsort wird schnell zu Ihrem persönlichen Lieblingsplatz.
Beide Schlafzimmer sind direkt vom Vorraum aus begehbar.
Das Badezimmer ist modern verfliest und mit einer Badewanne ausgestattet. Des Weiteren befinden sich ein Handwaschbecken und ein Waschmaschinenanschluss im Badezimmer. Das WC ist ebenfalls modern verfliest und separat, neben dem Badezimmer vorzufinden.
Der Abstellraum im Vorzimmer sorgt für extra Stauraum.
Diese Wohnung ist nicht nur ein Ort zum Wohnen, sondern ein Ort, an dem Sie Ihr Leben nach Ihren Vorstellungen gestalten können. Lassen Sie sich von der modernen Ausstattung und der idealen Lage überzeugen.
Sie haben die Möglichkeit den rückzahlbaren Annuitätenzuschuss zu übernehmen. Dieser kann ggfls. auf Ihr Fremdfinanzierungsdarlehen übertragen werden.
Der Höchstbetrag des Annuitätenzuschusses beträgt ca. € 336,48 pro Monat.
Erleichterte Finanzierungsmöglichkeit durch Übernahme der Förderung und des Bankdarlehen – beides kann bei unserem Projekt übernommen werden und somit Ihre Gesamtkosten senken.
Nähere Details zu Ihrer Traumimmobilie entnehmen Sie den Dokumenten.
Kaufpreis Wohnung inkl. Stellplatz: € 282.921,--
Diese Wohnung in Wiener Neustadt ist ein wahres Schmuckstück, das modernes Wohnen mit einem hohen Lebensstandard vereint. Ihr neues Zuhause wartet auf Sie!
Lage und Umgebung
Downloads
