Miete

Mistelbach - schöne barrierefreie Garconniere in Mistelbach

2130 Mistelbach, Pfarrgasse
Fläche
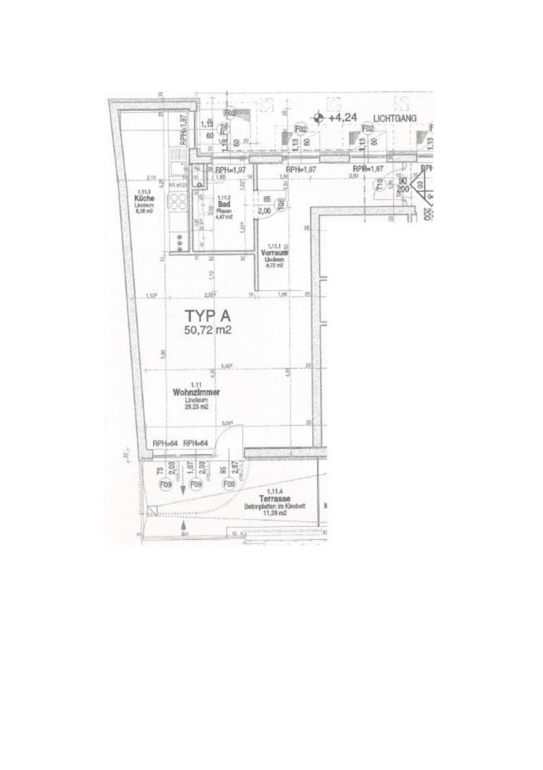
50.72 m²
Zimmer
1
Mietpreis
678,64 €

Überblick

Rechtsform
Miete
Baujahr
1998
Immobilientyp
Wohnung
Adresse
2130 Mistelbach, Pfarrgasse

Ausstattung

Terrasse
Keller
Lift

Beschreibung

Willkommen in Ihrer neuen Traumwohnung in Mistelbach!

Diese helle und äußerst gepflegte Wohnung überzeugt nicht nur durch ihren hohen Wohnkomfort, sondern auch durch ihre ausgezeichnete, zentrale Lage.

Die rund 51 m² große Wohnung verfügt über einen großzügigen Wohn-/Schlafbereich, wobei der Küchenbereich optisch geschickt vom restlichen Raum getrennt ist. Dank dieser durchdachten Raumaufteilung eignet sich die Wohnung ideal für Singles.

Ein besonderes Highlight ist der Balkon, der zum Entspannen und Verweilen einlädt und zusätzlichen Wohnkomfort im Freien bietet.

Das moderne Badezimmer ist mit einer bodenebenen Dusche, einem Handwaschbecken sowie einem WC ausgestattet.

Ein Personenaufzug sorgt für einen bequemen und barrierearmen Zugang zur Wohnung. Beheizt wird mittels Gas.

Zu jeder Wohnung gehört zudem ein eigenes Kellerabteil, das zusätzlichen Stauraum bietet.

Mistelbach präsentiert sich als moderne Stadt mit hervorragender Infrastruktur. Die Liegenschaft liegt zentral – Ärzte, Apotheke, Einkaufsmöglichkeiten, Banken, Restaurants sowie diverse Bildungs­einrichtungen sind in wenigen Gehminuten erreichbar.

Zögern Sie nicht und sichern Sie sich diese attraktive Wohnung in Mistelbach – ein Zuhause zum Wohlfühlen mit vielen Vorteilen.

Befristung: unbefristet, 1 Jahr Kündigungsverzicht 3 Monate Kündigungsfrist

Bezug: ab 1.5.2025

Energiekennzahlen: Laut Energieausweis vom 30.03.2020 beträgt der Heizwärmebedarf 68,45 kWh/m²a Klasse C und der Gesamtenergieeffizienz-Faktor 1,64 Klasse C.

Der einmalige Finanzierungsbeitrag beträgt € 10.828,15 und die monatliche Miete beläuft sich auf € 678,64 inkl. BK und Ust.
Die monatlichen Kosten für Warmwasser und Heizung betragen € 173,60.

Lage und Umgebung

250 m
Verkehrsmittel
250 m
Arzt
250 m
Supermarkt
750 m
Kindergarten
500 m
Schule
250 m
Bank

Downloads

Anfrage senden

* Pflichtfelder