OPEN HOUSE - Samstag 13. Juni 2026, 10:00 - 15:00 Uhr - Wiener Neustadt "ein viertel grün" Hier geht es zum Projekt!
Miete

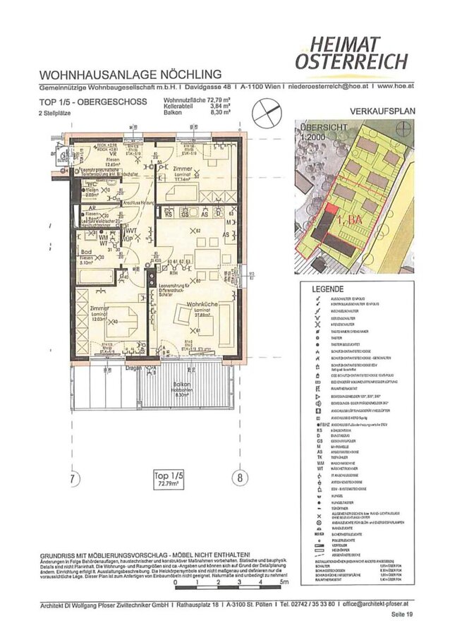
Nöchling - traumhafte 3 Zimmerwohnung im Grünen

3691 Nöchling, Birkenweg
Fläche
72.79 m²
Zimmer
3
Mietpreis
850,49 €

Überblick

Rechtsform
Miete
Baujahr
2015
Immobilientyp
Wohnung
Adresse
3691 Nöchling, Birkenweg

Ausstattung

Keller
Parken
Lift

Beschreibung

Willkommen in Nöchling in Niederösterreich – hier erwartet Sie eine attraktive Wohnung in ruhiger, idyllischer Lage mit hohem Wohnkomfort.

Die rund 73 m² große Wohnfläche bietet ausreichend Platz zum Wohlfühlen. Zusätzlich lädt ein etwa 8 m² großer Balkon dazu ein, entspannte Stunden im Freien zu genießen.

Das großzügige Wohnzimmer mit harmonisch integrierter Kochnische bildet das Herzstück der Wohnung. Von hier aus gelangen Sie direkt auf den Balkon, wo Sie den Blick ins Grüne schweifen lassen und den Tag entspannt beginnen oder ausklingen lassen können.

Beide Schlafzimmer sind vom Vorraum aus erreichbar und bieten vielseitige Nutzungsmöglichkeiten.

Das Badezimmer ist mit einer Badewanne ausgestattet, das WC befindet sich in einem separaten Raum. Ein zusätzlicher Abstellraum sorgt für praktischen Stauraum im Alltag.

Ein eigenes Kellerabteil sowie zwei im Mietpreis inkludierte Autoabstellplätze ergänzen dieses attraktive Angebot ideal.

Im Ort selbst profitieren Sie von einer guten Infrastruktur mit Einkaufsmöglichkeiten sowie Kindergarten und Schule – besonders familienfreundlich. Naturliebhaber kommen dank zahlreicher Wanderwege und der Freizeitanlage am Badeteich ebenfalls voll auf ihre Kosten.

Diese Wohnung vereint Wohnqualität, Komfort und eine angenehme Umgebung – ein Zuhause, das keine Wünsche offenlässt.

Befristung: unbefristet, 1 Jahr Kündigungsverzicht 3 Monate Kündigungsfrist

Bezug: ab sofort

Energiekennzahlen: Laut Energieausweis vom 28.05.2025 beträgt der Heizwärmebedarf 40,60 kWh/m²a Klasse B und der Gesamtenergieeffizienz-Faktor 0,60 Klasse A+.

Der einmalige Finanzierungsbeitrag beträgt € 12.956,62 und die monatliche Miete beläuft sich auf € 850,49 inkl. BK und Ust.

Lage und Umgebung

250 m
Verkehrsmittel
6250 m
Bank
6250 m
Arzt
250 m
Supermarkt
500 m
Kindergarten
250 m
Schule

Downloads

Anfrage senden

* Pflichtfelder