Miete

Pärchentraum in Kirchberg an der Pielach – barrierefrei wohnen

3204 Kirchberg an der Pielach, Soisstraße
Fläche
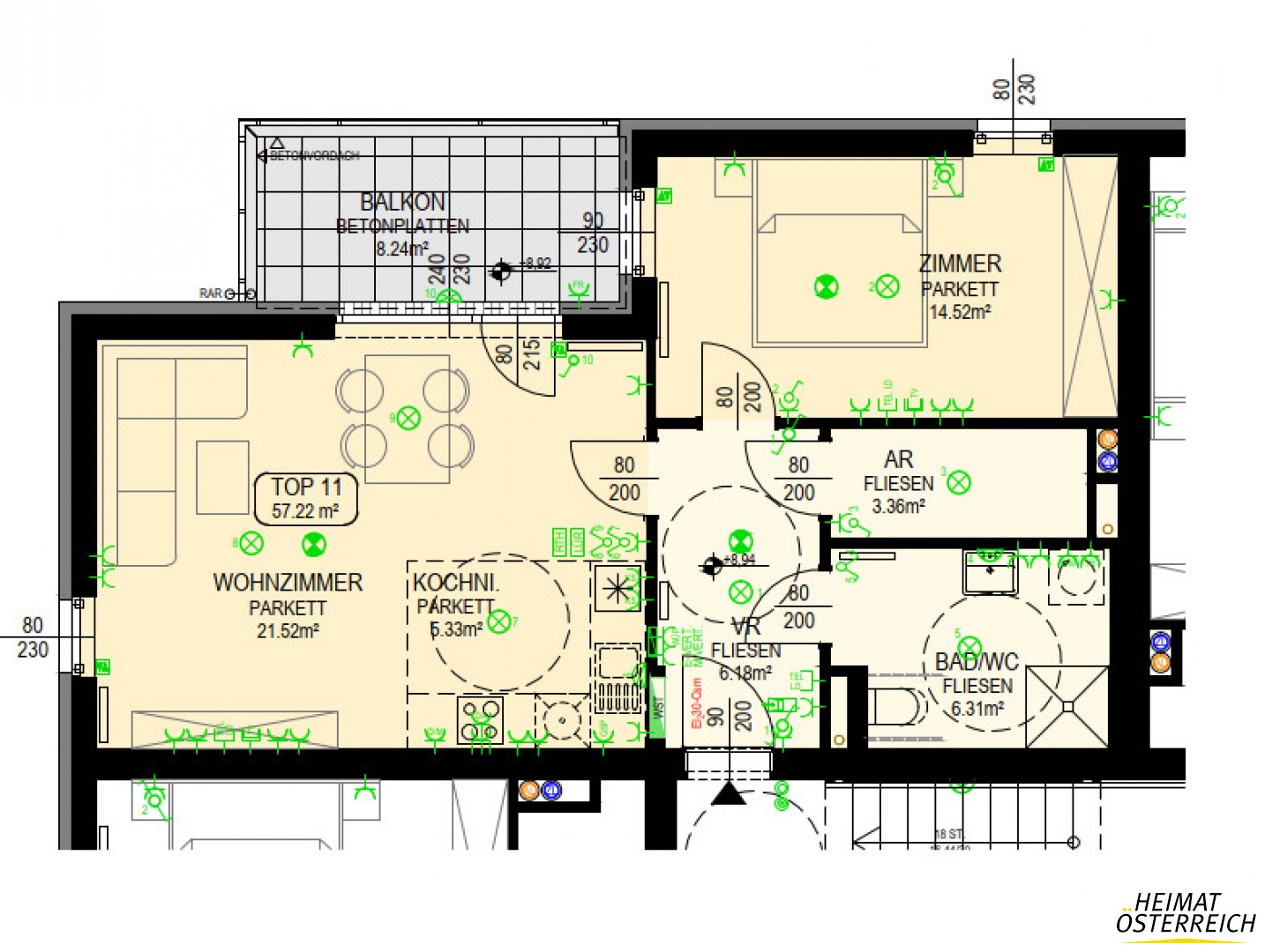
57.22 m²
Zimmer
2
Mietpreis
669,29 €

Überblick

Rechtsform
Miete
Baujahr
2021
Immobilientyp
Wohnung
Adresse
3204 Kirchberg an der Pielach, Soisstraße

Ausstattung

Keller
Parken
Lift

Beschreibung

Die Wohnung befindet sich in einem gepflegten Wohnhaus direkt an der Soisstraße und überzeugt durch ihre zentrale Lage. Sämtliche öffentliche Einrichtungen wie Gemeinde, Schule, Kirche, Banken, Lebensmittelmarkt sowie diverse Gastronomiebetriebe befinden sich in unmittelbarer Nähe und sind bequem zu Fuß erreichbar. Die malerische Umgebung lädt zudem zu ausgedehnten Spaziergängen und Fahrradtouren ein.

Bereits beim Betreten der Wohnung spüren Sie die freundliche und einladende Atmosphäre. Auf rund 57 m² Wohnnutzfläche erwarten Sie zwei helle Zimmer sowie ein etwa 8 m² großer Balkon.

Die Raumaufteilung umfasst ein großzügiges Wohnzimmer mit optimal integrierter Kochnische, ein Schlafzimmer mit Blick auf den Balkon sowie ein modernes Badezimmer mit bodenebener Dusche, Waschbecken und WC.

Ein besonderes Highlight ist der Balkon mit seinem traumhaften Grünblick. Hier genießen Sie eine wunderschöne Aussicht auf die umliegende Natur und können den Alltag hinter sich lassen. Ob beim morgendlichen Kaffee oder einem entspannten Abendessen – dieser Platz wird schnell zu Ihrem persönlichen Lieblingsort.

Zur Wohnung gehören ein Autoabstellplatz sowie ein eigenes Kellerabteil. Die Wohnhausanlage bietet darüber hinaus einen Lift, einen Fahrrad- und Kinderwagenabstellraum, einen Trockenraum sowie einen Müllraum. Beheizt wird die Anlage mittels umweltfreundlicher Pelletszentralheizung.

Diese Wohnung vereint Komfort, Lebensqualität und naturnahes Wohnen in attraktiver Lage. Überzeugen Sie sich selbst von diesem schönen Zuhause in Kirchberg an der Pielach und werden Sie Teil einer freundlichen Nachbarschaft. Wir freuen uns auf Ihre Anfrage!

Befristung: unbefristet, , 1 Jahr Kündigungsverzicht 3 Monate Kündigungsfrist   

Bezug: ab sofort

Energiekennzahlen: Laut Energieausweis vom 06.07.2021 beträgt der Heizwärmebedarf 26,31 kWh/m²a Klasse B und der Gesamtenergieeffizienz-Faktor 0,78 Klasse A.

Der einmalige Finanzierungsbeitrag beträgt € 11.692,39 und die monatliche Miete beläuft sich auf € 669,29 inkl. BK und Ust.

Lage und Umgebung

2500 m
Verkehrsmittel
2750 m
Bank
2750 m
Supermarkt
3000 m
Kindergarten
3500 m
Schule
2750 m
Arzt

Downloads

0.13 mb
0.13 mb
0.3 mb
0.37 mb

Anfrage senden

* Pflichtfelder