St. Pölten - Jetzt Ihre Traumwohnung sichern! Geförderte Mietwohnungen in der Stifterstraße
Miete

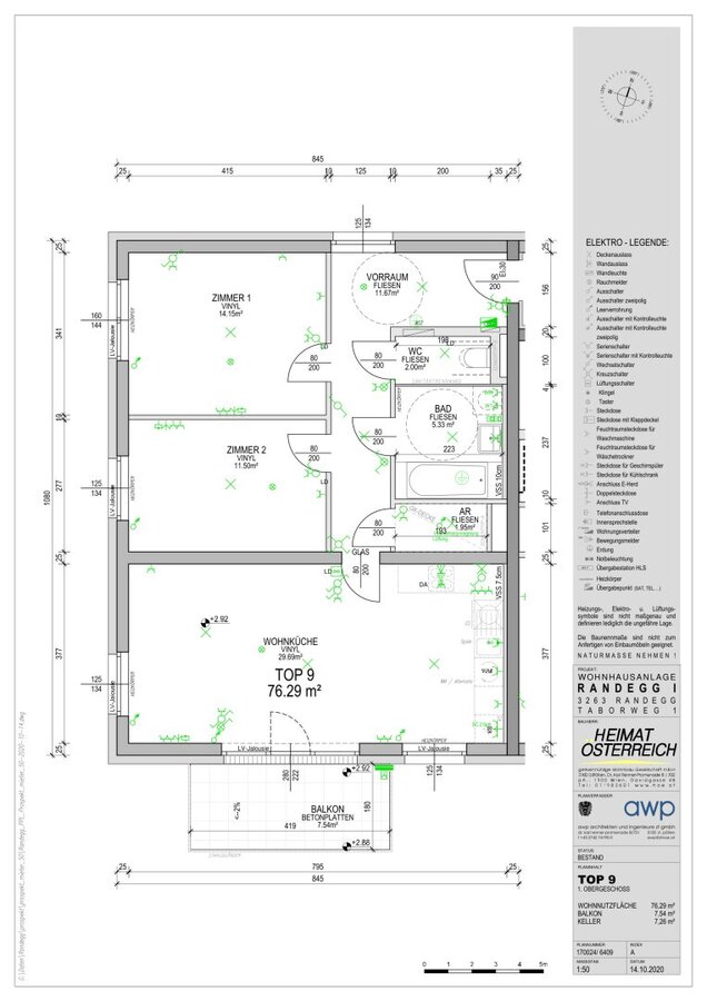
Randegg: Charmante 3-Zimmer-Wohnung mit Balkon

3263 Randegg, Taborweg 1
Fläche
76.29 m²
Zimmer
3
Mietpreis
686,61 €

Überblick

Rechtsform
Miete
Baujahr
2020
Immobilientyp
Wohnung
Adresse
3263 Randegg, Taborweg 1

Ausstattung

Keller
Parken

Beschreibung

Diese attraktive Wohnung mit 76,17 m² Wohnfläche überzeugt durch eine südseitige Ausrichtung, die für helle, freundliche Räume sorgt.

Die  Wohnküche bietet direkten Zugang auf den 7,54 m² großen Balkon, welcher einen herrlichen Platz zum Entspannen und Genießen bietet. Die modernen Vinylböden in Holzoptik verleihen den Wohnräumen ein warmes Ambiente. Ein geräumiger Vorraum sowie ein praktischer Abstellraum sorgen für zusätzlichen Stauraum.

Das Badezimmer mit gemütlicher Badewanne lädt zum Entspannen ein. Das WC ist getrennt angelegt. In Vorraum, Abstellraum und Sanitärräumen wurden  Fliesen verlegt.

Beheizt wird die Wohnung über Fernwärme, zusätzlich sorgt eine kontrollierte Wohnraumbelüftung für ein angenehmes Raumklima.

Zur Wohnung gehören zudem ein Kellerabteil, Lift, Wasch- und Trockenraum, sowie Fahrrad- und Kinderwagenraum. Ein Stellplatz ist bereits in der Miete inkludiert.

Kindergarten, Schule, Einkaufsmöglichkeiten, Arzt und Bank befinden sich in fußläufiger Nähe. Die herrliche Natur lädt zu Spaziergängen, familienfreundlichen Wanderungen oder Radtouren im Radroutenparadies der Umgebung ein.

Diese Wohnung vereint modernen Wohnkomfort, perfekte Lage und hohe Lebensqualität – ideal für Paare oder kleine Familien!

Befristung: unbefristet, 1 Jahr Kündigungsverzicht 3 Monate Kündigungsfrist

Bezug: ab sofort 

Energiekennzahlen: Laut Energieausweis vom 05.11.2020 beträgt der Heizwärmebedarf 24,20 kWh/m²a Klasse A und der Gesamtenergieeffizienz-Faktor 0,73 Klasse A.

Der einmalige Finanzierungsbeitrag beträgt € 5.000,- und die monatliche Miete beläuft sich auf € 686,61 inkl. BK und Ust.
 

Lage und Umgebung

150 m
Verkehrsmittel
175 m
Supermarkt
150 m
Kindergarten
50 m
Schule
225 m
Bank
450 m
Arzt

Downloads

1.37 mb
0.26 mb

Anfrage senden

* Pflichtfelder